For Sale (出售) $828,000.00 - House-torrence (独栋别墅), House(别墅)
因此,Granny Flats现在开始慢慢成为主流,不仅可以以较低的价位满足满足有租房需求的人, 又可以给房东带来额外的租金收入。 于是, 越来越多的房东通过建造并租赁它们而最大化自己所拥有物业的投资收益。
据了解, 一般450平米左右的房子就可以加建Granny Flat ,这样房东就可以收取双份租金。目前通过建筑公司签订整套交易的成本约为$100,000,而拥有两间卧室的Granny Flat每周可以提供超过$200的租金回报,简单计算总收益率超过10%。

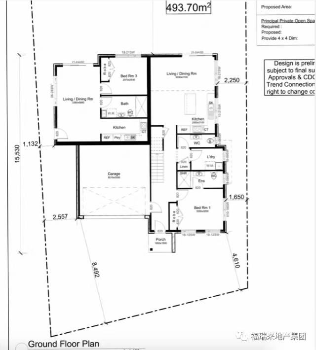
的确,Granny Flat能最大化你的房产投资收益。 但是自己找建筑公司加建,需要找Councile 审批, 改动房屋的布局,水电煤网的搬迁, 承担加建至少10万的费用等等, 使得不少房东望而却步。 那有没有一步到位的解决方案呢? 今天福瑞来地产精品超市就向大家带来4房独栋加两房Granny Flat 户型, 租金高达800以上, 而且是一步到位, 无需加建那额外十万的费用。
Marsden Park
Marsden park , 4房独立别墅, 开发商专门设计Granny Flat 户型, 高租金回报

一层可按图纸隔成两个卧室, 带独立的卫生间和厨房。 和四房的别墅进行分租, 这样既方便管理, 又可以保持彼此的相对独立性, 租金4房独栋租金在650左右, Granny flat 两房分租的租金200左右,总共850, 高租金回报, 实现正现金流收入。


地块所在位置:距离占地256公顷的世界级高科技商业园区Sydney Business Park开车仅5分钟的距离,澳洲最大IKEA,Costco、 Bunnings Warehouse 和 Masters 已经在此开张营业,未来的就业人口将是悉尼CBD的就业人囗的2倍,Macquarie Park 就业人口的2倍。租房需求众多。

西北区Marsden Park 作为政府优先规划的西北Rouse Hill-Marsden Park 经济走廊的终端, 开发时间晚, 对比周边已经飞涨的区域, 正处于价值洼地, 价格优势明显。

19年交房, 10%首付,交房之前继续享受区域发展带来的升值红利。
价格和户型推荐:土地面积414-500平米, 建筑面积198平米, 总价82.8-92.3万

本项目作为Marsden park 区域内最大的规模的住宅社区,不仅比邻Costco, 小区内自带三个购物中心,两所学校, 绿地。 项目正对人工湖湿地公园, 位置绝佳

区域介绍
随着对悉尼的投资热潮,带动悉尼政府积极拓展新南威尔士州的西北部地区,各项交通基础建设及商业区的成立,让邻近西北悉尼新兴商业区的Marsden Park跃上国际舞台,成为投资悉尼的新热点。


Marsden Park位於新南威尔士州悉尼中央商业区(CBD)的西北,近年因悉尼政府大力发展基础建设及世界级企业中心进驻Sydney Business Park,让该区成为买家投资悉尼的新热点。
基础建设加速房产升值
政府的基础建设是带动新市镇快速发展的重要因素,举例说明,过去西北一代的Kellyville,在基础建设前的房价约为每栋50-60万澳元。当基础建设完成後,加上邻近有Norwest Business Park商业中心进驻,短短四年间就有近一倍的价格成长。如此成功经验,非常看好西北新兴住宅区Marsden Park未来几年的发展。
这个悉尼最大的新建商务园区 Sydney Business Park,截止到2016年9月份,已经开业的项目有:

部分已开业项目位置图
- IKEA(全球最大家居连锁)包括2.8万㎡零售店、市场大厅、儿童游乐区和瑞典食品市场以及818个车位的停车场;
- Costco(全球最大会员制超市)营业面积13,575㎡,停车位713个
- Lindt & Sprungli(瑞士莲巧克力)号称巧克力中的劳斯莱斯,工厂加零售店总面积超过2万㎡;
- Home Hub(大型家居连锁)营业面积1.9万㎡,光购买土地款就超过6600万元;
- ALDI(全球廉价超市连锁)Marsden Park第一家开业的日常生活超市;
- Bunnings Warehouse(澳洲最大的五金、家装连锁)和Masters Home Improvement;
- Dulux(多乐士涂料油漆)厂区面积2.3万㎡;
- Shell & McDonald’s、Coles Express……
已经确定进驻并在抓紧施工的项目:
- Linfox(澳洲最大的物流公司,在中国和欧洲都有分公司);
- Swire Cold Storage(太古冷冻物流)计划开设32,000m²恒温仓库和配送中心,其中第一期在2017年开业;
- Toll(澳洲唯一的一体化全流程物流供应商);
- Reece(水管和浴室用具连锁巨头)……

(美国超市巨头Costco 开业时, 人满为患的场景)
以进驻人数来说,悉尼政府正将部份政府机构从中部移转至此,同时已成立的Sydney Business Park商业中心,预计将有世界级企业进驻,并提供17,000职位。现在已经有Ikea, Costco, Shell, JB Hifi Home 等企业,依照Kellyville的经验,未来应该会有不错的投资成长。

预计Marsden Park全新独立屋於未来按年稳定增长6%至8%,特别是含有土地所有权的房产,随着悉尼中央商业区的逐步拓展,可买卖的土地是愈来愈少了。本项目又推出4房带Granny Flat的户型, 提高租金收入,帮助房东实现最大化收益。
连地永久物业愈加珍贵
悉尼商业区的西进拓展,可购买土地权的房产买少见少,这让国际投资者对拥有地契业权的物业趋之若鹜,「通常公寓式房产的投资报酬会随着时间及建筑物的老旧而产生折旧,但拥有土地业权的房产,却会因为时间及都市化的发展不断增值。」同时政府释放新的土地买卖通常需要很久时间,这也让Marsden Park的房产更具有投资价值。

西北区的Marsden Park无疑地成为投资专家眼中的一块明日之星,不但因都市发展而更具便利性,拥有土地所有权的屋业,让房产更具增值空间,同时本项目大型社区规划,周边购物, 学校, 湿地公园应有尽有为物业的升值锦上添花。

悉尼2036发展规划(The metropolitan planfor Sydney2036)报告指出:
未来Marsden park 有自己的火车站
悉尼将发展成以一个“GLOBAL CITY”(SYDNEY CBD)和三个“REGIONAL CITIES”(PARRAMATTA,PENRITH AND LIVERPOOL)组成的超级大都市的新格局,而三个区域中心都位于悉尼西部。最大的就业增长区定位于西北区(99,000个就业增长)和西南区(80,000个就业增长),悉尼CBD就业增长为58,000个。
政府已经规划火车西北线一期完工后,未来继续延伸两站,一站到Schofields火车站和现有的richmond线连接,再延伸一站到就业中心Marsden的Sydney Business park,并最终通到新机场。而Schofields就位于两条城铁大动脉的交叉点,并直接联通两大就业中心Norwest business park和Marsden business Park。足够保证交通就业都很便利。
项目详情,请您咨询您的专属置业顾问
如果您喜欢本文, 请扫描关注公司二维码,或者分享给你的朋友。
